JM Vastgoed
Plattestraat 30A 3830 Wellen België
T.011 76 05 04
E.info@jmvastgoed.be

Bouwgrond voor open bebouwing zonder bouwverplichting € 129.000

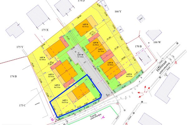
Tenrijt lot 1, 3530 Houthalen-Helchteren
Ref: Houthalen-Helchteren, Tenrijt (Lot 1)
681 m² grondopp.

Deze bouwgrond voor open bebouwing vinden we terug in Houthalen-Helchteren en telt een oppervlakte van 681m².

De breedte van de grond aan de straatzijde bedraagt 19,49m en is zuidwest georiënteerd.

Verdere informatie en verkavelingsvoorschriften beschikbaar op kantoor.

Naam
Johan Masset
GSM
E-mail

Prijs
€ 129.000
Grondwaarde
€ 86.097
Infrastructuur waarde
€ 42.903
BTW
€ 9.009,63
Registratiekosten
€ 10.331,64
Totale prijs
€ 148.341,27

Totale opp. grond
681 m²
Breedte grond
19,49 m

Beschikbaar
Bij akte
Oriëntatie tuin
Zuidwest

Overstromingsgevoeligheid
Mogelijk overstromingsgevoelig
Afgebakende zone
Niet van toepassing
G(ebouw)-score info
0
P(erceel)-score info
C
Stedenbouwkundige bestemming
Woongebied
Dagvaarding voor stedenbouwkundige overtreding
Geen rechterlijke herstelmaatregel of bestuurlijke maatregel opgelegd
Bouwvergunning
Niet ingegeven
Verkavelingsvergunning
Neen
Voorkooprecht
Neen
Beschermd erfgoed
Neen
Renovatieplicht
Niet ingegeven

Laten we de kosten berekenen

€ 148.341,27
1.5%
20 jaar
EUR/maand